DE LA PHOTO AU DEVIS PERSONNALISÉ EN QUELQUES ÉTAPES !
Envoyez à shopbe@iperceramica.be ou sur WhatsApp une photo et un schéma avec les dimensions du mur où sera appliqué le papier peint.
Vous recevrez ensuite un e-mail comprenant votre devis personnalisé, la modélisation du papier peint appliqué à votre mur, le développement graphique complet du décor choisi qui sera réalisé pour vous, sur mesure.
Comment prendre la photo ?
Pour pouvoir réaliser une simulation, il faut envoyer une photo du mur où sera posé le papier peint.
La photo doit être lumineuse, prise de face et montrer l’intégralité du mur. Il n’est pas utile d’enlever les objets fixés au mur (cadres photos, tableaux, déco…).
Exemples :
 
 
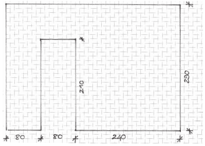
Comment prendre les mesures ?
Les mesures indispensables sont la largeur et la hauteur du mur.
  Il est indispensable d’indiquer précisément la présence d’éléments tels que porte, fenêtre, tableau électrique, etc. 
NB dans le cas d’une porte invisible, merci de préciser si la porte devra être recouverte de papier peint ou non ; si oui, il faudra réaliser des rouleaux complémentaires.
 
Si le mur ne présente pas d’obstacle, alors les mesures de la largeur et de la hauteur du mur suffisent.
 
IMPORTANT !
Les mesures et les informations fournies au moment de la demande initiale sont de la responsabilité du client.
Par conséquent, IPERCERAMICA FRANCE ne pourra être tenue pour responsable dans le cas où les quantités et/ou les dimensions commandées ne correspondraient pas au mur à couvrir.
La réalisation sur mesure
Les papiers peints IPERCERAMICA sont réalisés en personnalisant le produit en fonction de votre pièce.
La réalisation commence avec l’adaptation du décor aux dimensions de votre mur, tout en conservant les proportions du dessin.
La largeur du lé peut être de 68 ou 100 cm : la mesure sera choisie automatiquement en fonction des dimensions de votre mur, de façon à limiter les chutes. La hauteur est personnalisée en fonction des mesures fournies.
Les rouleaux comprennent toujours un « surplus », c’est-à-dire un excédent en termes de dimensions, qui rendra plus facile la pose du papier, la jonction entre les rouleaux, l’arrivée au sol, au plafond et sur les côtés.
Sur les aperçus graphiques, les excédents latéraux, inférieurs et supérieurs sont représentés en orange pour permettre une interprétation correcte du positionnement du décor et du matériel compté dans le devis. Ce qui est représenté correspond au produit qui sera réalisé et livré.
La proportion et la couleur des images visibles sur le site internet ont pour seul but d’illustrer le produit et sont purement indicatives. Au moment de la réalisation, les décors sont ajustés aux mesures effectives communiquées dans la demande de devis ; pour ces raisons la proportion et la couleur du décor réalisé peuvent varier légèrement.
Exemple du devis que je vais recevoir :
PHOTO FOURNIE PAR LE CLIENT
 
SCHÉMA AVEC MESURES FOURNI PAR LE CLIENT
 
MODÉLISATION PAPIER PEINT
 
DÉVELOPPEMENT GRAPHIQUE DES LÉS NÉCESSAIRES
 
DEVIS PERSONNALISÉ COMPLET - Devis complet établi sur la base des caractéristiques et mesures fournies.

 
			         
				 
			
 
							 
				 
				 
				 
				
				 
 
					